︎
CAMPOPIANO
.architetti
︎Info
︎
BSA 3062
competition
2020
Biasca - CH
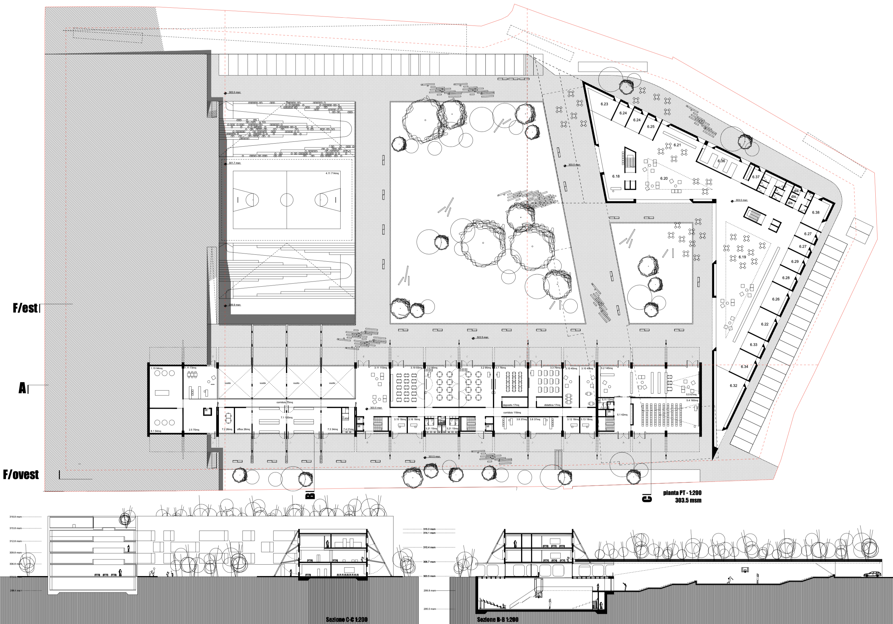
LUDICO - nuovi stabili scolastici comparto Bosciorina
index
︎︎︎
© copyright CAMPOPIANO.architetti sagl / campopiano.arch@gmail.com
︎
Via.dogana.8.CH6500.Bellinzona
.Swizerland / tel +41(0)912263633